
*힐스테이트 메디알레 청약조건은 5월 이후에 확인 가능합니다.
분양 개요 및 청약 조건

| 브랜드 | 힐스테이트 메디알레 |
| 위치 | 서울시 은평구 대조동 88,89일원 |
| 세대수 | 2,451세대 중 일반분양 483세대 |
| 전용면적 | 51㎡, 59㎡, 74㎡ |
| 분양시기 | 2025년 5월 분양 예정 |
| 입주시기 | 2026년 10월 예정 |
힐스테이트 메디알레는 서울 은평구 대조동88,89일원에 들어서는 대규모 재개발 아파트입니다. 총 2,451세대 중 일반분양은 483세대입니다. 전용면적은 51㎡, 59㎡, 74㎡로 구성되며, 2025년 5월 분양 예정입니다. 입주는 2026년 10월 예정입니다.
청약 주요 일정 (예정)
- 입주자 모집공고: 2025년 5월 9일
- 특별공급 청약 접수: 2025년 5월 19일
- 일반공급 청약 접수: 2025년 5월 20일
- 당첨자 발표: 2025년 5월 27일
- 계약일: 미정
힐스테이트 메디알레 청약은 모집공고 후 청약이 가능합니다.
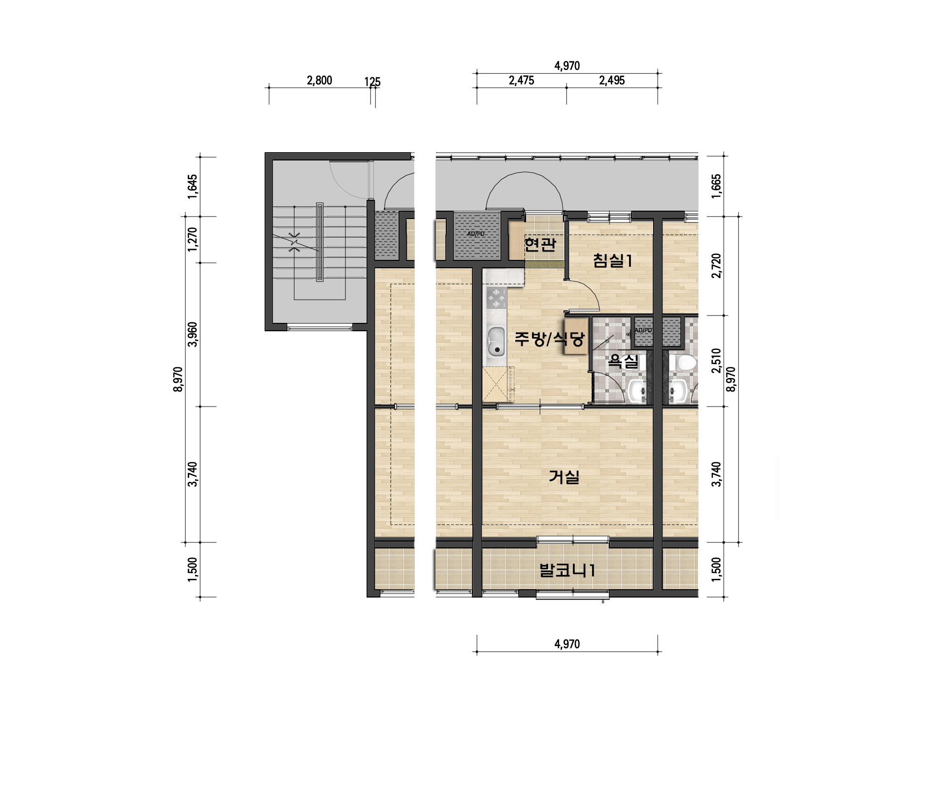
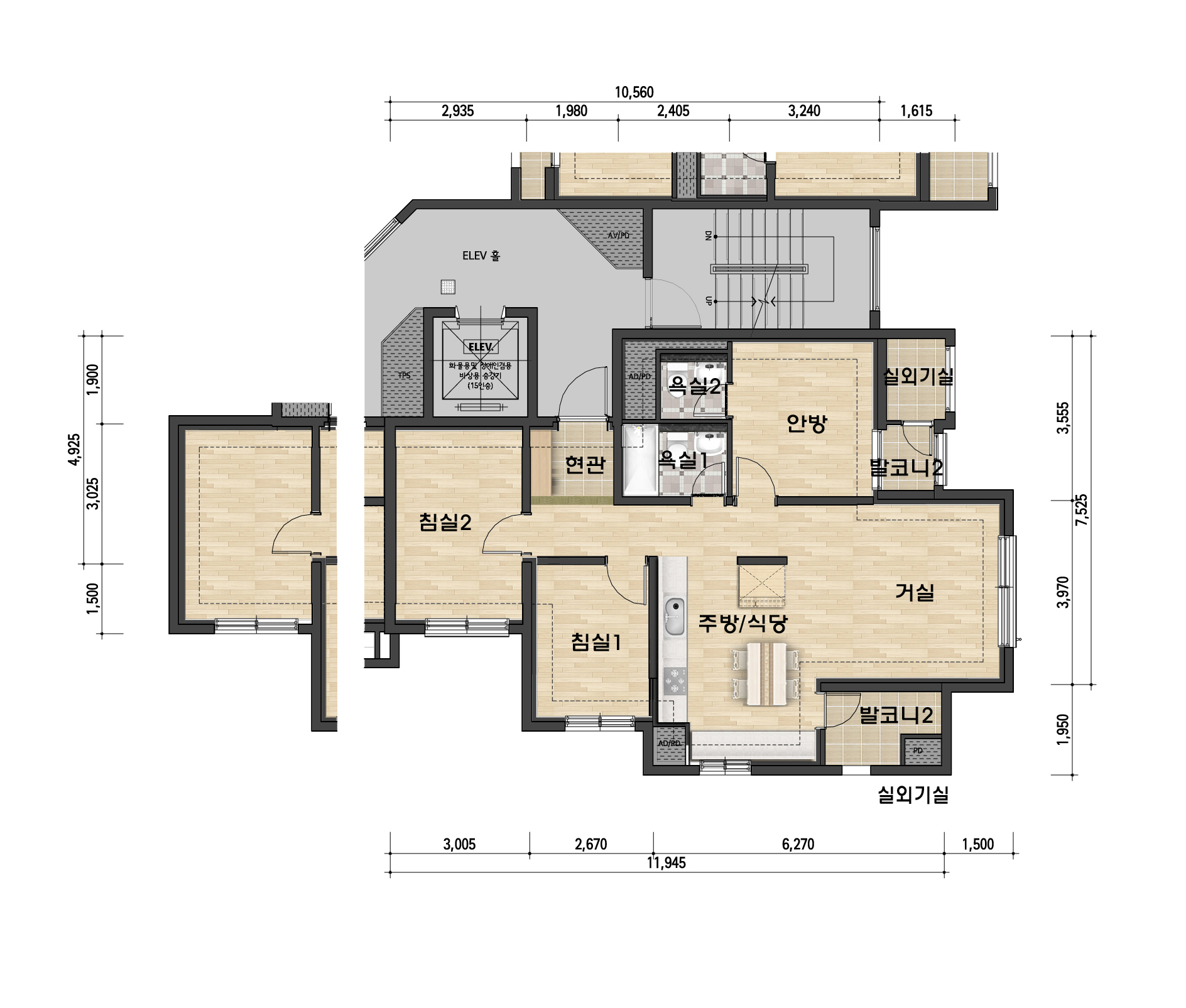
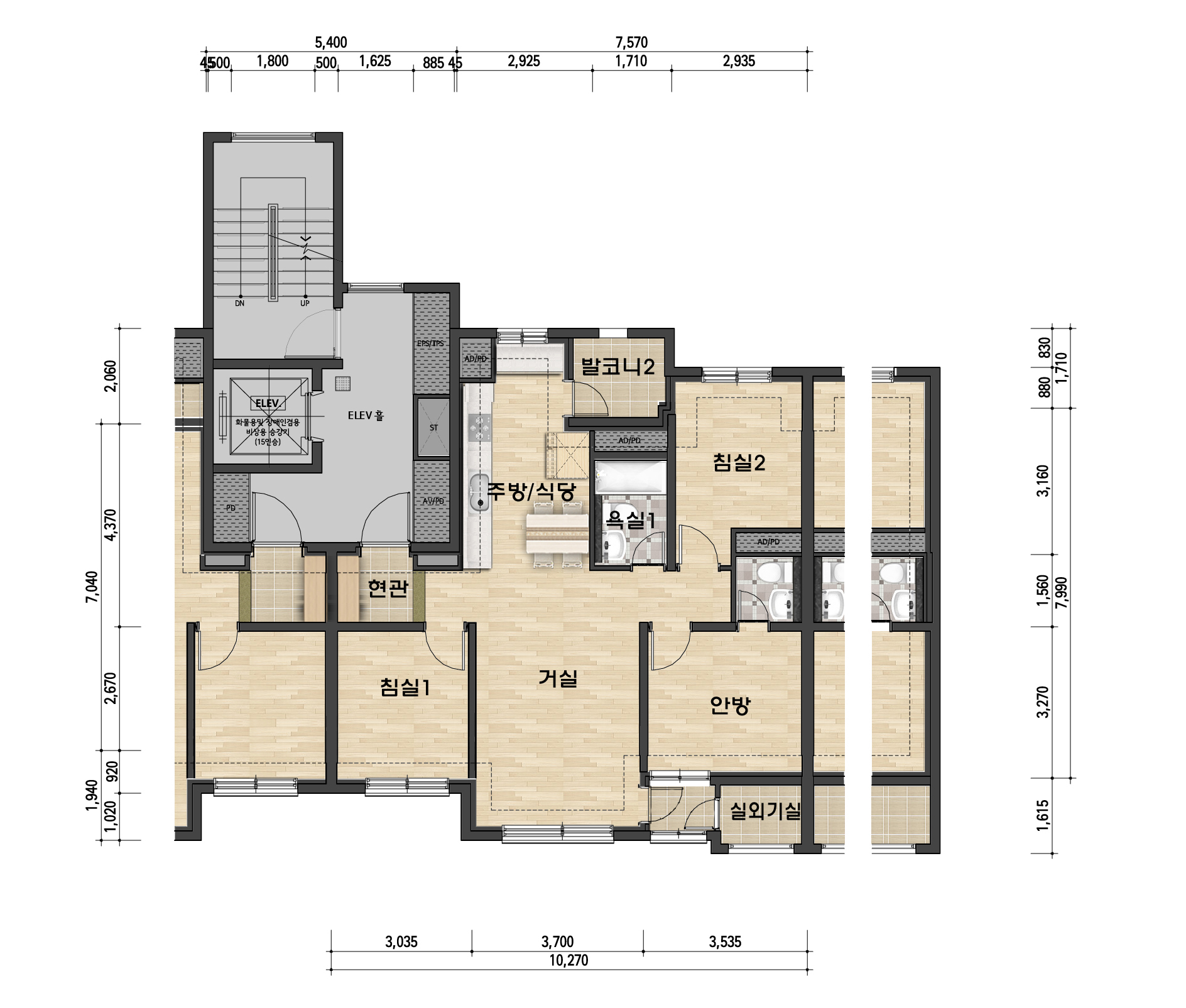
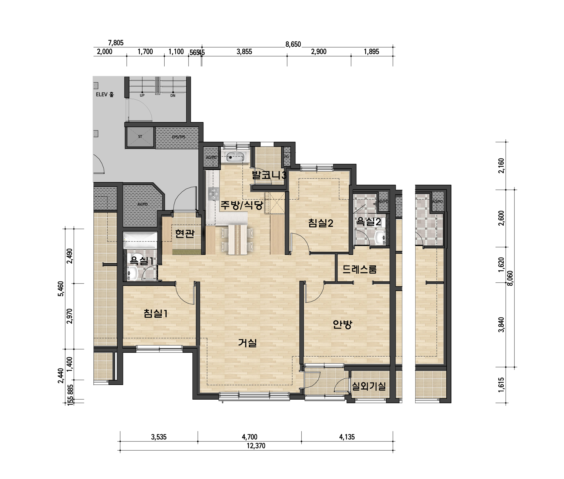
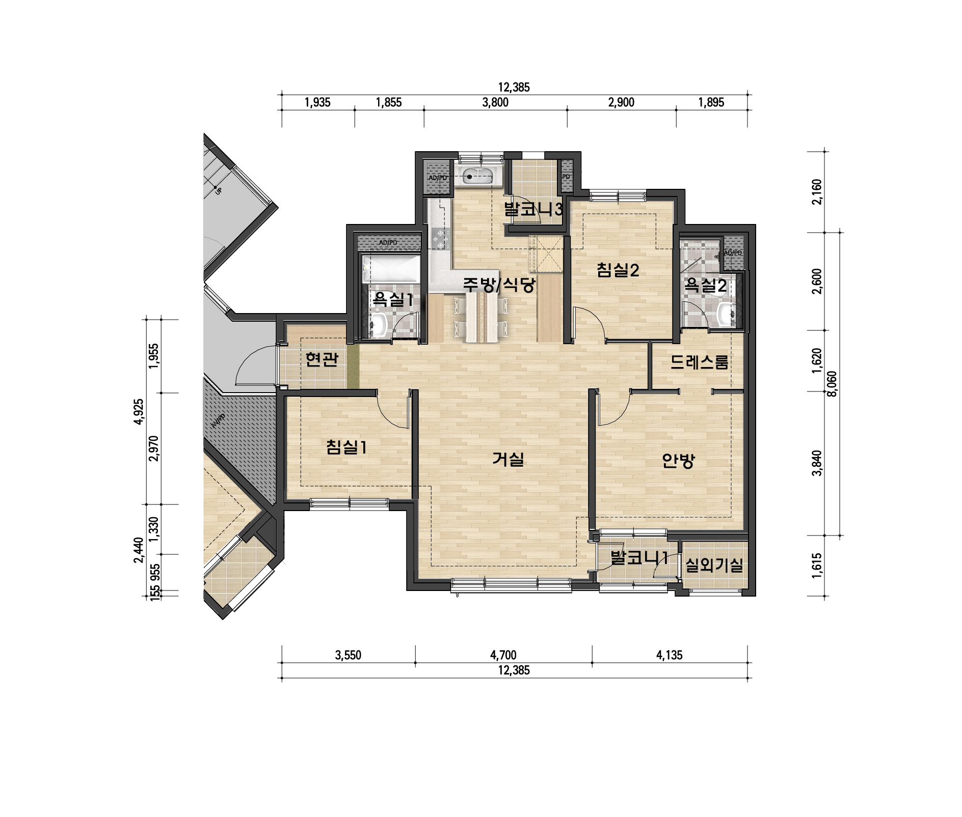
힐스테이트 메디알레 평면도











서울 은평구 대조동89-222
입지 조건 및 교통

단지는 은평구 연신내 생활권 중심지에 위치하며, 평지 입지로 이동이 편리합니다. 또한 주변에 서울 지하철 3.6호선, GTX-A 연신내역이 인접해 있어 경북궁역 고속버스터미널, 마포, 공덕, 삼성역까지 빠른 이동이 가능하며 내부순환도로,
통일로, 은평로등 주요 간선도로 이용으로 종로, 광화문, 강남까지 자차로 20분~30분 내 진입이 가능합니다.
교통:
✅ 3호선(불광역)이용시 강남권(경북궁역, 고속터미널역)까지 빠른이동
✅ 6호선(불광역)이용 시 마포, 공덕 등 서북권 주요지구 접근 편리
✅ GTX-A로 인해 강남 상섬역까지 약 10분대 이동 가능성
도로망:
✅ 내부순환도로, 통일로, 은평로 등 주요 간선도로 이용가능
✅ 자차로 종로, 광화문, 강남까지 20분~30분 내 진입 가능
생활 인프라


힐스테이트 메디알레는 주변에 대은초등학교, 예일여중·고, 동명여고 등이 인접해 교육환경이 뛰어나며, NC백화점, 이마트, 스타필드 고양, 은평문화예술회관 등 풍부한 생활 편의시설을 갖추고 있습니다. 또한 청구성심병원, 은평성모병원 등 의료 인프라도 우수합니다.
교육:
✅ 대조초등학교, 불관초등학교 등 도보권
✅ 연신중학교, 불광중학교, 은평고등학교 인접
✅ 확원가(불광역, 연신내역 주변) 밀집
쇼핑/상업시설:
✅ 이마트 은평점(대형마트, 도보 약 10분)
✅ 롯데몰 은평점(대형 합복쇼핑몰, 차로 5분내외)
✅ 연신내 로데오거리(대규모 상업지구, 맛집/카페/상권 풍부)
병원:
✅ 은평성모병원 (대형 종합병원, 차로 5~10분)
✅ 연세사랑병원, 지샘병원 등 중대형 병원 다수
공원/녹지:
✅ 북한산국립공원(둘레길, 등산코스 인접)
✅ 불광천 산책로(자전거도로, 산책로 잘 정비)
광공서:
✅ 은평구청, 은평경찰서 등 행정기관 가까움
교통 수혜 및 개발 호재

✅ 연신내역(3·6호선, GTX-A) 도보권
✅ 불광역(3·6호선), 역촌역(6호선), 구산역(6호선) 이용 가능
✅ GTX-A 노선 파주~삼성 구간 단계적 개통 예정
✅ 수색·DMC 복합개발, 서울창조타운 개발 예정
✅ 신분당선 서북권 연장(계획 중) 등 추가 교통호재 기대
분양가 및 주변 시세 비교
현재 예상 분양가는 평당 약 4,500만원 선으로 예상됩니다.
평당 분양가 4,500만원으로 책정한 근거 :
✅ 서울 지하철 3.6호선, GTX-A 연신내역이 인근 인접
✅ GTX-A노선으로 인해 서울 주요지역을 편라하게 이동가능
✅ 주변에 초등학교, 고등학교가 인접해 있어 등하교가 편리함
✅ 주변에 신축단지가 없어 메디알레 분양가가 인근 정비사업에 새로운 기준이 될 것으로 판단
- 전용 59㎡: 약 11억원대
- 전용 74㎡: 약 14억원대
주변 시세:
- 래미안 베라힐즈 (연신내) 전용 84㎡ 11억 ~ 12억원
- 힐스테이트 녹번 전용 84㎡ 11억 수준
힐스테이트 메디알레는 신축 프리미엄과 입지 우수성으로 시세 상승 여지가 높습니다.




전망 및 투자 가치 분석
힐스테이트 메디알레는 연신내역 GTX-A 수혜, 서울창조타운 개발 등 다양한 호재로 가치 상승이 기대됩니다.
브랜드 프리미엄(현대건설), 평지 대단지, 쿼드러플 역세권 장점까지 갖춰 실거주 및 투자 모두 매력적입니다.
특히 서울 도심권 재개발 신축 물량 희소성이 높아 장기적 가치도 기대할 수 있습니다.
💡 TIP: 분양일정 및 최종 청약조건은 현대건설 공식 홈페이지 또는 '힐스테이트 메디알레' 분양관 홈페이지를 통해 꼭 확인하세요!
결론 및 마무리
힐스테이트 메디알레는 뛰어난 입지와 우수한 생활 인프라, GTX-A 등 교통 호재, 그리고 은평구 재개발 프리미엄을 동시에 갖춘 서울 내 보기 드문 신규 아파트입니다.
예상 분양가는 주변 시세와 비슷하거나 소폭 높을 것으로 전망되지만, 신축 프리미엄과 다양한 개발 호재를 감안하면 중장기적으로 투자 및 실거주 모두 긍정적인 선택이 될 것으로 보입니다.
다만, 현재 청약조건 및 분양가는 최종 확정되지 않았으므로, 반드시 분양공고를 통해 정확한 내용을 확인한 후 청약 여부를 결정하는 것이 중요합니다.
*힐스테이트 메디알레 청약조건은 5월 이후에 확인 가능합니다.
💡 TIP: 청약 전 본인의 청약 가점, 소득요건, 재당첨 제한 여부 등을 반드시 점검하세요.
'부동산' 카테고리의 다른 글
| 고척 푸르지오 힐스테이트 청약 일정 분양가 총정리 (+모델하우스 평면도) (1) | 2025.05.11 |
|---|---|
| 부천대장a7 블럭 본청약 시작 2025 부천대장A7지구 청약 완벽 가이드 (0) | 2025.05.08 |
| 2025 부천대장 A7, A8 본청약 분양가, 청약조건, 투자전략 완벽 가이드 (0) | 2025.04.27 |
| 2025 황학동 청계 노르웨이숲 청약조건 및 분양가 평면도 총정리 (0) | 2025.04.25 |
| 황학동 청계 노르웨이 숲 청약 분양가 인근 단지 비교분석 (0) | 2025.04.25 |